Стоимость 18.06.2023г. -84000руб. Автор – конструктор фирмы ДЭЗАЛТ Суханов Эдуард
К нам обратилась Лилия с просьбой спроектировать шкаф-купе и посчитать стоимость. Они с мужем отремонтировали полностью двухкомнатную квартиру в панельном доме и стандартная готовая мебель им не подходила в прихожую. Как часто бывает, прихожая не позволяет поставить шкаф с полноценной штангой, нужно что-то опять выдумывать.
Если заходишь в квартиру, слева есть простенок в 450мм, этого недостаточно для нормальной долевой штанги, придется штангу разворачивать поперек.
Есть два варианта решения этой проблемы. Можно сначала сделать секцию длиной примерно в 800мм, уместить её в глубину простенка 450, а затем уже сделать выпирающий шкаф глубиной 550мм распашной. Тогда в выпирающем шкафу можно разместить долевую штангу, но Лилия не хотела распашные двери.
Ну в прихожих действительно, иногда лучше делать купейные двери, чем распашные, это просто иногда удобней.
Решили делать открытую секцию при входе. Нужно было чтобы можно было войти, разуться, задвинуть обувь, присесть если нужно, повесить одежду на крючок.
У Лилии была мысль сделать нависающую антресоль над крючкам, я её отговаривал от этой идеи, аргументируя следующим:
она будет давить присутствием, некрасиво будет,
это привет из прошлого,
ничего в неё толком не положите, она небольшая.
Я делал разные чертежи с антресолью и без, подсветку добавлял, тем более у них есть розетка в этом месте, можно было сделать подсветку.
Одно время мы пришли к мнению, что полочка для шапок точно не помешает для удобства и не испортит внешний вид, но в самый последний момент, Лилия попросила добавить еще одну полку.
Моё личное мнение, что она там не к чему совершенно. Если положить на нее вещи, их будет видно, некрасиво. Но клиент настоял, мы сделали.
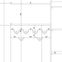
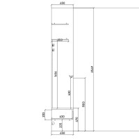
Смотрите окончательные чертежи, к чему мы пришли.

Штанги в шкафу поперечные и чтобы полки не прогибались под тяжестью одежды, мы их сделали толстыми, склеили две панели в 32мм.
Там где розетки, мы сделали отверстие для проводов. Лилия сказала, что возможно они будут сушить обувь электрическими сушилками.
Корпус шкафа подобран примерно под цвет стен помещения, двери-купе полностью зеркальные.
Напротив шкафа мы ещё сделали полочку для мелочей по просьбе клиентов.





















