Автор – конструктор фирмы ДЭЗАЛТ Суханов Эдуард
Мы Александру уже делали шкаф-купе в прихожую, теперь он обратился к нам за мини-стенкой.
Нужно было сделать, что-то негромоздкое и в то же время функциональное. Скажу прямо, задача невыполнима. Невозможно сделать изящную красивую мебель и в то же время вместительную, по крайней мере за счёт использования ЛДСП и прямоугольных форм, которыми мы ограничены.
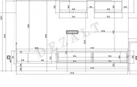
Я попробовал сделать нижние ящики менее громоздкими, разделив фасады визуально на две горизонтальные части.
Верхние антресольные полки заказчик не дал уменьшить по высоте, потому что ему важно было в них складывать книги, иначе они бы не умещались. Их количество тоже обусловлено практичностью, чтобы больше всего уместить.
Рядом с этой мини-стенкой, спроектировали стол для подростка, который учится в школе.
Как вы видите из чертежей и цветных картинок, все модули закреплены на стену, они не имеют опоры на пол. Благодаря этому, конструкция смотрится «легче».
В самом низу стеллажа, Александр попросил оставить место для установки трансформатора и светодиодной ленты. В дальнейшем, он довел дело до конца, наклеил ленту и прислал нам фотографии как всё выглядит вечером.
Хочу подвести итог.
Мы более менее справились, но я лично не доволен результатом. Верхние шкафы выглядят громоздкими и давят, третий ряд там явно лишний. Их нужно было делать разных длин и меньшей высоты.
Если бы я не придумал разрезать нижние ящики по горизонтали визуально, нижний стеллаж смотрелся бы ужасно громоздким.
Часто клиенты присылают красивую картинку мебели и свои реальные габариты куда это нужно вписать. В большинстве случаем это невыполнимо и итоговая картинка будет сильно отличаться. Просто имейте это в виду. Нас часто обманывают дизайнеры и визуализаторы. Они рисуют красивую мебель в огромном жизненном пространстве, но человек забывает, что в его 18 квадратных метрах это просто не уместить. Будьте реалистами.

























