Автор – конструктор фирмы ДЭЗАЛТ Суханов Эдуард
У этого шкафа который мы сделали для московской семьи, есть несколько особенностей.
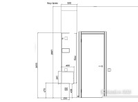
Во-первых высота до потолка, она составляет 2887мм до натяжного полотна. Если вы не знаете, максимальная длина ЛДСП 2800мм и чтобы не строить всякие цоколи и антресоли, мы нарастили боковину шкафа до нужной длины. Так шкаф смотрится легче, без каких либо поперечных планок, которые визуально уменьшат его высоту.
Второй момент, это электрические щитки в стене, которые ограничивали нас по установке и крепежу полок. Но мы решили эту проблему, позже в видео Григорий продемонстрирует съемную полку и вы заметите штангу для одежды, которая не закреплена к стене.
Ну и третья проблема, это узкий коридор. Мы думали с клиентом на счёт системы дверей-купе Минифит, которая экономит 50 миллиметров внутри шкафа, но их хлипкость всех пугает. Всегда предупреждаю, что система интересная, но её жесткость оставляет желать лучшего.
Обычная дверная система Слим съедает 100мм от глубины шкафа, но клиент остановился на ней, она прочная.
Очень часто нас приглашают делать шкаф вплотную к натяжному потолку без закладной. Мы набили на этом деле руку и у нас это очень хорошо получается, без каких либо щелей, но именно в этом случае, клиент заранее сделал закладную. Поэтому у нас получилось сделать длинную антресольную полку без вертикальных перегородок. Если бы закладной не было, нам пришлось бы делать стойки шкафа вплотную к натяжному потолку и уже к ним, крепить верхний трек дверей-купе.
У самого входа в квартиру, мы спланировали и сделали открытую раздевалку. Можно повесить куртку на крючок, положить на полочки обувь, посмотреться в зеркало, положить что-то в выдвижной ящик. Всё самое необходимое мы уместили 1100 миллиметров.
Двери-купе мы сделали из двух декоров, по центру вставка ЛДСП со структурой дерева, а по низу и верху Лакобель (стекло с краской) серого цвета.
К сожалению полноценную фотографию сделать в таком узком коридоре никак не получится, даже с широкоугольным объективом, вам придется довольствоваться видеообзором и картинками сделанными на компьютере.


























