Автор – конструктор фирмы ДЭЗАЛТ Суханов Эдуард
К нам обратилась Юлия из Москвы, с просьбой спроектировать шкаф-купе в комнату и распашной шкаф в прихожую.
Сначала мы получили от неё примерные размеры будущей мебели, это дало нам первоначальное представление как лучше сконструировать шкафы для клиентки.
Выслали первоначальные чертежи со стоимостью на электронную почту, цена Юлию устроила.
Далее наш конструктор съездил к заказчице домой, сделал все необходимые измерения, показал материалы, подписали двухсторонний договор на изготовление.
Фасад шкафа-купе должен был быть белым и глянцевым, для таких целей отлично подходит стекло окрашенное белой краской с изнаночно стороны, называется — Лакобель.
В специальной мебельной программе, мы сделали три варианта будущего фасада и выслали на рассмотрение.
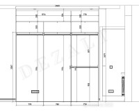
Юлия выбрала первый вариант, где дверь-купе делится на два прямоугольника горизонтальной полоской.
Внутри шкаф очень простой, три штанги и несколько полок вверху, посмотрите чертежи.
Если у боковин шкафа нет поддержки в виде полок, тогда они под тяжестью вещей будут «пузыриться», их выгнет наружу, может образоваться небольшая щель между боковиной и дверью-купе. Чтобы этого не произошло, мы поставили на внутреннюю часть каждой боковины по металлическому накладному выпрямителю.
Распашной шкаф, который требовался в прихожую, получился тоже очень простым, у него нет ни одного ящика. Единственная проблема была с электрическими щитками, но мы предусмотрели под них вырез в правой боковине.
Так как фурнитура у входной двери в квартиру была черного цвета, клиентка пожелала установить мебельные ручки и штангу тоже черного цвета. Мы бы хотели предложить ещё и чёрные петли, но у компании DTC на тот момент в России, мы не нашли петли чёрного цвета.
Потолки в квартире натяжные, поэтому мы спланировали конструкции шкафов так, чтобы они касались полотна и было ощущение что шкаф и потолок едины, нет никаких щелей.
Когда мы собрали двери-купе у себя в цеху и стали их упаковывать, мы заметили что прямоугольные куски Лакобеля (стекло с краской) отличаются оттенком друг от друга. Причем разницу заметно под определенным углом и лучше всего при дневном освещении.
Стекла и зеркала мы покупаем в компании «Тотал», они очень дружелюбные и находятся недалеко от нашего базирования. Мы решили отвезти готовые двери в «Тотал», чтобы наглядно показать разницу и определиться какие же куски лучше заменить.
Почти все сотрудники компании вышли посмотреть на получившиеся двери и как это часто водится, порассуждать почему так произошло. Но никто не спорил, разница была всё же очевидна, разные партии стекла.
На фотографии дверей конечно разницы не видно по тону, но он там был. «Тотал» достаточно быстро сделал новые три куска и мы переделали двери.
В итоге мы сделали всё как планировали:
поставили выпрямители на боковины шкафа-купе,
все шкафы сделали под натяжной потолок вплотную,
у распашного шкафа ручки и штанга чёрные,
заметили проблему с разнотоном у дверей, исправили.
Смотрите видеообзор шкафа-купе и распашного шкафа для Юлии.
Дубликат видео.
























