Автор – конструктор фирмы ДЭЗАЛТ Суханов Эдуард
Попробую рассказать про все нюансы связанные с изготовлением этой прихожей, если будет неинтересны технические моменты, переходите сразу к видеообзору что находится ниже. Григорий озвучит основные параметры мебели, продемонстрирует работу дверок, сеток и ящиков.
К нам обратился Константин, ему посоветовал нас наш старый заказчик. В новую квартиру в Мытищах, ему требовалась прихожая.
Клиент уже имел представление что ему нужно:
• вошел в квартиру, снял одежду, повесил на крючок,
• разулся, обувь убрал в тумбу или оставил на коврике пока сохнет,
• положил мелочи в виде ключей и перчаток в выдвижной ящик,
• при необходимости повесил одежду в платяной шкаф,
• сверху, чтобы не пропадало место, нужны антресоли и заодно они спрячут электрическую проводку.
Константин очень сильно прорабатывал внешний вид мебели, в процессе её конструирования я сделал ему 10 вариантов. Расскажу про значимые, которые сильно отличались друг от друга.
Сверху 6 дверей, снизу тумба с тонкой сидушкой, под платяным шкафом отдельные дверки.
Этот вариант смущал Константина какофонией верхних дверей. Они были разной ширины и вытянутые вверх. Если их сделать равнозначными, тогда место в платяном шкафу становится меньше.
Вариант с пятью дверьми сверху.
Мы попробовали все таки разбить шкаф на три равные секции, но с дверьми сверху поступили по своему. Сделали три широкие дверки для антресолей и две узкие дверки над платяным шкафом.
Внешне мы изменили декор мебели. Константин предложил использовать черное ЛДСП и древесное «Дуб Чарльстон темно-коричневый». Он еще решал — сделать маленькие нижние дверки древесными или черными?
Чтобы немного осветлить черную нишу, Константин предложил установить светодиодную подсветку.
Пять одинаковых дверей по ширине и плюс доборы к стенам.
Следующий значимый вариант из девяти отличается следующим.
Всё-таки верхние дверки были разделены на пять равных частей и уже к ним, я привязывал внутренности шкафа, делили стойками, но платяной шкаф все равно остался самой широкой секцией.
Сиденье тумбы клиент попросил сделать потолще. Чтобы не покупать целый лист 25-го ЛДСП, я предложил склеить 2 листа по 16мм. и выйти к толщине 32мм.
Появились сетчатые выдвижные полки для обуви. Проблемы с ними была в том, что их регулировки не хватало на секцию в 833мм., больше они не растягивались. Мы договорились с клиентом, что я сделаю планочки из ЛДСП и уже на эти планки, закрепим сетчатые полки. Да, красоты это не добавит, но зато можно будет установить понравившиеся недорогие полки.
Ну и еще один немаловажный момент. Константин спросил меня - а что будет с щелями между корпусами и стенами? Их будет видно?
Я сказал что да, там будут щели примерно по 1см. с каждой стороны.
Дело в том, что изначально я планировал делать конструкцию шкафов корпусной. Собрать платяной шкаф, задвинуть. Собрать тумбы и антресоли, вместить между шкафом и стеновой панелью слева, закрепить. Да, щели должны были получиться с двух сторон или с одной, например слева между стеной и стеновой панелью из ЛДСП. С щелью нужно было либо смириться, либо чем то закрыть, замаскировать.
Константин сказал — нет, я так не хочу, так не пойдет, щели меня будут раздражать. Может быть доборы поставить как мне кухонники на кухне сделали?
Я сказал — ну хорошо, сделаю доборы планками.
Как эти доборы крепить к шкафу представлял смутно. На шканты мы бы вряд ли смогли их закрепить, а вот на качественный двухсторонний скотч, возможно.
Обратите внимание что черный декор пропал. Заказчик посоветовался с супругой, еще с кем то и решил черное ЛДСП не использовать. Побоялся что будет темно и мрачно в прихожей, где нет окон. Он хотел сделать двери под цвет стен, в палитре Эггера есть похожие однотонные цвета, но я предложил белые. Исходя из опыта, я уже знаю, что сочетание желтовато-красного дерева с белым выглядит выигрышно. А если фасад сделать под цвет стен бежевым, всё во-первых будет сливаться, во-вторых всё будет желтого цвета. Заказчик согласился, что так будет лучше.
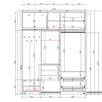
Утвержденные чертежи. Доборы убрали.
Вы видите утвержденные чертежи, то к чему пришел заказчик. Доборы решили убрать, вместо этого сделать шкаф всё-таки встроенным. Тумбы будут фиксированной ширины, а вот платяной шкаф сделал с припуском на подгон. Делаются детали больше и отрезаются по месту у клиента дома.
В таком случае, боковины прижмутся к стенам максимально плотно и некрасивых щелей не будет. Дверки у нас накладные, они тоже немного скроют своим присутствием мелкие неровности стен, которые всё-таки были.
Константин настаивал на направляющих для ящиков от фирмы «SAMET». Это турецкая компания, которая делает фурнитуру с повышенным удобством использования, но стоимость её значительно ниже того же Блюм например. Направляющие которые мы купили для Константина имели функцию открывания от нажатия и плавной доводки. Только у очень дорогих образцов именитых производителей есть две функции в сразу. Например Китайцы делают либо «нажал-открыл», а дальше рукой доводи, дожимай. Либо тянешь ящик за ручку, сам открываешь, затем его толкаешь, он плавно доводится. А тут Самит объединил сразу две функции, но стоимость чуть выше хороших китайских направляющих.
Качество этих турецких направляющих оставляет желать лучшего. Я с ними намучился, пришлось даже менять. Если интересно читайте отдельную заметку - Знакомство с турецкими направляющими Самет.
Верхние дверки без ручек, открываются от нажатия. Мы использовали итальянские толкатели, которые могут быть врезными и накладными, если докупить специальный корпус для их крепежа внакладку.
Неплохое впечатление произвела выдвижная сетчатая полка для обуви бренда «Пульс». Ничего особенного, доводчика нет, просто хорошо сделано и ровно окрашен металл.
Светодиодную ленту клиент дал сам. Первый раз работал с 24 вольтовой, обычно мы используем 12 вольт. Для этого мы носим с собой паяльник, олово, канифоль. Я не электрик, но пайка получилась крепкой.
Давайте подытожу, потому что после, мы делали Константину гардеробную, мебель в псотирочную, настенную тумбу и мы видели прихожую в эксплуатации.
Направляющие Самит работают очень плохо, ящики до конца не доводят. Константин сказал, что если сломаются, просто новые закажет, уже другого производителя.
Светодиодная лента горит, всё с ней хорошо. Кстати, первый раз я покупал для клиента черный алюминиевый профиль, в который вклеивается лента. Рассеиватель был тоже черный! В выключенном состоянии смотрится стильно.
Огромные крючки черного цвета от бренда «Пульс» тоже в отличном состоянии, ничего с ними не случилось. Просто первый раз такие покупали и ставили, их выбрал клиента.
Долго мы прорабатывали этот шкаф, но в итоге клиент очень доволен и остался о нас высоко мнения. Скоро будем делать мебель для его мамы, в январе 2023 года.
Смотрите видеообзор, Григорий покажет прихожую.
















































