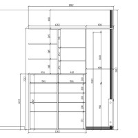
К нам обратилась московская семья, с просьбой спроектировать и рассчитать гардеробную, в практически квадратную комнатку, её размер 1817х1862.
Всё прошло по отработанной схеме.
Наш замерщик приехал, всё что нужно измерил, обсудил с заказчиком с какой стороны что будет и уехал.
На электронную почту клиенты мы выслали чертежи будущей гардеробной. Последовали небольшие правки, но основная идея сразу прижилась, слева ящики с полками, а справа штанги.
Смотрите видеообзор гардеробной.
Чертежи гардеробной
Фотографии гардеробной































