Получается это третий шкаф-купе одной и той же семье.
Первая работа Шкаф-купе в Реутове.
Вторая работа Шкаф-купе встроенный в прихожую.
В спальне, в нише, было сетчатое наполнение, полки и ящики из металла. Нас попросили изготовить и установить двери-купе, закрыть вещи дверьми. С дверьми мы должны сделать короб для натяжного потолка.
Обсудили внешний вид, клиент точно знал что хочет, зеркальные двери будут находиться по бокам, а по центру двери с серым ЛДСП.
В назначенный день приступили к монтажу. Сделали короб, поставили боковые планки, чтобы двери не стерли обои, вставили двери.
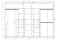
Пока мы работали, к нам обратился клиент с просьбой начертить и рассчитать стоимость изготовления наполнения этого шкафа. По признанию заказчика, сетчатое наполнение уступает по удобству полкам и ящикам из ЛДСП. Всё таки захотелось полноценный шкаф. Когда ячейки в шкафу из ЛДСП, можно с пользой использовать каждый сантиметр, уместить больше вещей и не бояться что они посыпятся в стороны как с сетчатых полок.
Мы получили первоначальный набросок на листке бумаги и глядя на него, обсуждая нюансы с клиентом, создали чертеж будущего шкафа на компьютере.
Напилили, закромили все детали, ящики, стойки и повезли всё снова к клиенту на сборку.
Двери-купе мы выставили в сторону и приступили к сборке внутренностей.
К нашему приезду уже был натянут потолок и когда мы всё завершили, получился законченный вид у шкафа.
Смотрите видеообзор проделанной работы.

























