Автор – конструктор фирмы ДЭЗАЛТ Суханов Эдуард
Думаете — какой мне распашной шкаф сделать в прихожую?
Есть неплохой вариант конфигурации мебели в прихожую, достаточно выигрышный, на его основе объясню как нужно мыслить.
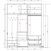
У самого входа вам лучше сделать обувницу, на которую при желании можно и присесть. Выше 47 сантиметров не делайте, будет неудобно присаживаться.
Внутри можно сделать несколько полок для невысокой обуви. Если у вас будет возможность не делать полик и цоколь, лучше не делайте, будете обувь задвигать сразу по полу в тумбу. Если у вас в прихожей плитка, будет очень удобно.
Над тумбой сделайте крючки. Крючки можно сразу на стену закрепить, но тогда стена быстро испачкается от верхней одежды. Чаще всего под крючками пропускают планки из ЛДСП, мягкие аппликации или вставляют целиковую плиту из ЛДСП, как в нашем случае.
Вам обязательно понадобятся несколько выдвижных ящиков. В них вы будете хранить щетки, ключи, туалетную воду, собачий поводок и кучу всяких принадлежностей без которых никак не обойтись в повседневной жизни.
Над ящиками расположите зеркало. Если зеркало у вас уже есть, вы можете вместо зеркала продлить крючки.
Под ящиками желательно оставить свободное пространство, чтобы вся конструкция не давила своими присутствием, у нас и так вся верхняя часть занята антресолями.
Ну и в конце, дальше от входа в квартиру, стоит двустворчатый шкаф. Внутри классическая штанга и две выдвижные сетчатые корзинки для обуви.
Конфигурация такой прихожей несложная, но функциональная. Делали мы её для семьи из 4-х человек, два взрослых и двое детей. Естественно в него не уместится буквально вся одежда, но носимая именно сейчас, легко входит.
Обратите внимание на несколько нюансов у этой мебели, без которых она бы вообще не смотрелась.
Во-первых, это наличие декоративной подсветки над крючками и зеркалом. Функционала ноль, да, согласен. Но благодаря неяркому свету создается некий уют в прихожей.
Во-вторых. Можно было сделать не три выдвижных ящика, а пять. Чтобы мы получили? Больше функционала, это точно. Но как бы это стало смотреться? Громоздко и некрасиво.
В-третьих, сочетания цветов. Изначально клиент хотел сделать шкаф под цвет стен, был очень похожий однотонный декор у Эггера, но вовремя передумал.
Чтобы клиент получил, если бы шкаф был весь бежевым? Всё бы однозначно слилось, стало скучным, однотонным, невыразительным. Темный древесный корпус придал некой натуральности, внес элемент экологичности. Эггер некоторые декоры делает так качественно и хорошо, что ты проводишь рукой и находишься в замешательстве, тебе кажется что это натуральное дерево.
А белый фасад разбавил желтизну в помещении, усилил контраст с корпусом.
Спорный момент с антресольной частью. Возможно, было бы ещё лучше, если бы антресоли над зеркалом и крючками не было. Но по задумке, антресоль закрывает люк в левой стене над крючками, прячет кучу проводов и трансформаторов от подсветки коридора. Нельзя было отказаться от антресолей.
Еще подробней про этот шкаф - Встроенная мебель в прихожую.




















