Автор – конструктор фирмы ДЭЗАЛТ Суханов Эдуард
Самые распространенные места для размещения гардеробной: прихожая, коридор, спальня.
Реже всего мы делали гардеробные в гостиных, но один раз делали на лоджии, сомнительное дело… От солнечного света через окна вещи могу портиться, поэтом хозяин планировал их закрыть плотными жалюзи.
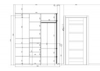
Вход в гардеробную может быть в виде межкомнатной двери со стеной, а можно его отгородить дверьми-купе, зависит от задумки дизайнера помещения.
Из практики могу сообщить, что в прихожих комнатах входом в гардеробную служат двери-купе. Как я понимаю дело тут больше в удобстве, чем в эстетике. Проще сдвинуть дверь, быстро войти, взять или повесить вещь и выйти. Сдвижная дверь не будет никому мешаться в отличии от распашной.
Очень часто гардеробная выполняет две функции, за одной дверью-купе шкаф для верхней одежды, а за второй дверью уже вход в саму гардеробную.
В прихожих комнатах обычно места немного, поэтому гардеробные по размерам выходят скромные, небольшие.
Что-то среднее получается когда гардеробную делают в коридоре, она небольшая, но и не маленькая.
Ну и самые большие гардеробные закладываются в спальнях. Возможно в этом и есть здравый смысл. Можно спокойно наводить порядок, вытаскивать вещи, перебирать и снова раскладывать на полки. Нет опасения что кому то помешаешь в прихожей или кто-то вдруг придет, а у тебя все раскидано.
Часто наблюдал, как клиенты укладывают вещи на кровать, перед тем как начать их вещать на штанги, сортируют. Действительно удобно. В прихожей или в коридоре так сделать негде, ну не на пол же класть?
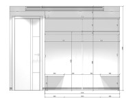
Ну и самый главный плюс гардеробной в спальне, особенно это важно женщинам, можно наряжаться и смотреться в зеркало, как сочетаются вещи, для этого кстати, часто делают зеркальные двери-купе.
Во всех случаях, если есть возможность, стараются сделать сплошные антресольные полки вверху. Очень удобно хранить крупногабаритные предметы которыми пользуются редко.
Конечно нужно сделать минимум 2 выдвижных ящика, а лучше по 2 на каждого члена семьи.
Иногда гардеробные, да и впрочем шкафы тоже, делят на две части, одна часть супруги, вторая супруга. Чаще всего большая часть отходит женщине, а меньшая мужчине, но были и обратные ситуации и смотрелось это нетипично.
Если у вас гардеробная будет находиться в отдельном помещении с межкомнатной дверью, желательно сделать вентиляционные отверстия. По правилам их должно быть два, одно низко у входной двери, второе на противоположной стене под потолком. Нужно чтоб воздух циркулировал по комнатам, иначе вещи будут «задыхаться», портиться от запахов.
Обязательно подумайте об освещении, лучше поставить мощный светильник в центр гардеробной. Антресольные полки отрежут часть светового потока сверху, станет в два раза темней, учтите это.
Иногда мы делаем светодиодную подсветку на верхних полках или на стойках, но тогда нужно позаботиться заранее об электрическом проводе, к которому нужно будет подключиться.
Конечно существует подсветка на батарейках, ни раз её устанавливали клиентам, по большому счету она справляется со своей задачей. У неё только один недостаток, нужно периодически менять элементы питания.
Ну и конечно рекомендую выбрать светлое ЛДСП для наполнения гардеробной, чтоб было светлей в помещении. Иначе темное ЛДСП будет скрадывать свет и на его фоне плохо различимы контуры вещей.
Если нужно будет разработать проект гардеробной, обращайтесь на почту box@dezalt.ru.



































