Начну с «лирики», потому что кто-то скажет – «Кому вообще сейчас нужен компьютер с системным блоком?»
Сейчас стационарные компьютеры потихоньку вытесняются планшетами и ноутбуками. Действительно удобней перемещаться по комнатам держа в руках мобильный гаджет, нежели быть привязанным к определенному месту, за столом. Можно развалиться на диване и полистать страницы любимых сайтов, посмотреть видео, пообщаться в социальной сети, поболтать по скайпу. Если необходимо сделать простые действия, например с почтой, написать текст, запустить простую программу, то можно это делать на ноутбуке.
Хорошо, а если компьютер необходим для серьезной работы? У меня три монитора, системный блок на тысячу ват с шестью кулерами, блок бесперебойного питания, серверное хранилище данных, музыкальные колонки, принтер, 2 микрофона, двое наушников, большая и удобная клавиатура. Такой компьютер мне нужен для монтажа видео, написание текстов, работы в фотошопе, рисования чертежей мебели, занятий с сайтом ДЭЗАЛТ.РФ и для других серьезных вещей.
Гораздо комфортней сидеть в удобном кресле, перед тремя мониторами, с мощным системным блоком, с качественной музыкой звучащей фоном. При необходимости я могу делать несколько дел одновременно. На каком ноутбуке я смогу это сделать? Даже если взять очень дорогой производительный ноут, то морочится с подключением еще двух мониторов, отдельной изогнутой клавиатуры как у меня, отдельной мышкой, да еще подключать колонки?... Нет уж, это не для меня. Компьютер мне нужен не для развлечений, с его помощью я зарабатываю деньги.
Так, «лирика» закончилась.
Удобней всего иметь отдельное рабочее место в квартире, например компьютерный стол с различными полочками и секциями для оргтехники. Но часто мы живем в стесненных условиях, лишнего места катастрофически не хватает и приходится что-то выдумывать. Слышали о варианте, когда компьютерный стол находится внутри шкафа-купе? Несколько раз мы воплощали такие идеи в жизнь и с удовольствием расскажу, на что нужно обратить внимание.
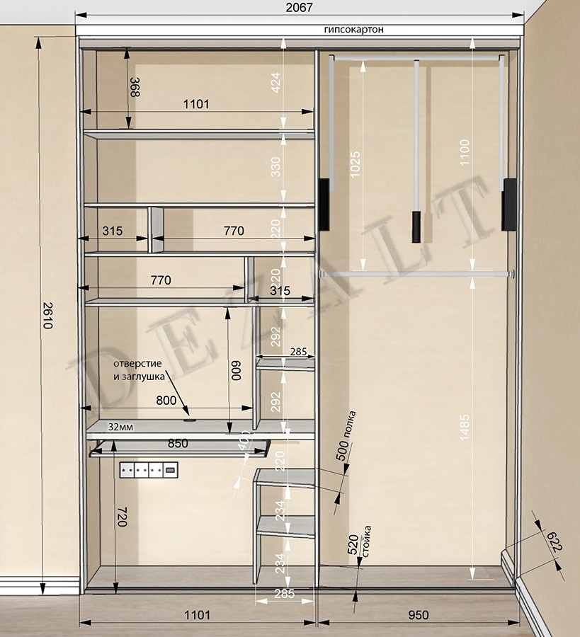
Для начала вам нужно понять какой ширины сделать секцию в шкафу, где будет стоять монитор и выдвигаться клавиатура. Если сделать ширину, например 500мм., то вам будет тесно. Представьте, что вы выдвинули панель с клавиатурой. Возьмите измерительную рулетку и отложите 500мм. Вы уместите клавиатуру и мышку? Вам будет удобно?
Рекомендую минимум 700мм. ширину секции под компьютер, а если будет возможность, заложите 800-900мм. Вы будете себя чувствовать комфортно во время работы, меньше уставать. У вас появится возможность установить рядом с монитором музыкальные колонки, или папки с документами.
Если у вас два и более монитора, то естественно нужно рассчитывать ширину секции под них. Главное не забывайте про двери купе, которые недолжны, препятствовать свободному доступу выдвижению клавиатуры.
Толщину столешницы рекомендую сделать 25-32мм. Во-первых, это прочно, она не прогнется под тяжестью, во-вторых это красиво. Не забудьте об отверстие в столешнице для проводов к монитору и другой электроники.
Дальше нужно начать с высоты выдвижной панели. Рассчитайте так, чтоб сидя за ней, ваши коленки не упарились в нее, но в тоже время руки свободно лежали на клавиатуре. Стандартный письменный стол имеет высоту 760мм., клавиатура может быть немного ниже этого показателя. Главное чтоб вам было удобно, ведь рост у людей разный. Лично у меня высота выдвижной панели в верхней точке 65см., мой рост 174см., мне комфортно. Локти лежат на подлокотниках кресла, а кисти свободно располагаются на клавиатуре. Руки совершенно не устают. Конечно, ногу на ногу я закинуть не могу, но так вальяжно сидеть некогда.
Между верхом выдвижной панели и низом столешницы должно быть пустое пространство, чтоб умещалась клавиатура и мышь, оптимальный вариант 70мм. Высоту столешницы вы получите после расчета выдвижной клавиатуры. Давайте сложим то, что у нас выходит: 650мм. +70мм. + толщина самой столешницы 32мм. = 752мм. высота столешницы от пола.
На столешнице будет стоять монитор, его глубину пристально рассматривать не станем, она сейчас примерно одинаковая, около 25см. с подставкой, а вот высоту измерить стоит. Высота моего монитора 420мм., следовательно, нужно заложить 50мм. для вентиляции и на случай его замены на более высокий. Делаем полочку для принтера, папок, колонок либо других вещей. Глубину советую сделать поменьше столешницы, чтоб она не нависала над вами, а то будет чувство, что вы сидите в коробке. Толщина полки может быть снова увеличена до 32мм. либо установите большие уголки-подпоры. Не забудьте запланировать отверстие для проводов, если планируете ставить принтер или музыкальные колонки.
Глубина столешницы будет равна внутренней стойке, а вот выдвижная панель под клавиатуру должна быть на несколько сантиметров меньше, чтоб провода от системного блока, клавиатуры, мыши, свободно проходили по задней стене.
Подумайте, как вы установите системный блок на полу. Помните про систему охлаждения компьютера. Боковой кулер не должен быть прижат к стойке или стене, оставьте к нему доступ.
О моментах, на которые нужно обратить внимание, я вам рассказал. Осталось упомянуть о нижнем треке дверей купе, про который многие переживают.
Если ваша панель под клавиатуру будет выдвигаться хотя бы на 400мм. этого уже достаточно, чтобы не наехать колесиком стула на нижний рельс.
Ну и советую использовать направляющие полного выдвижения для панели под клавиатуру.
Ничего сложного в том, чтобы спрятать компьютер в шкаф-купе, нет.



















